Візуалізації
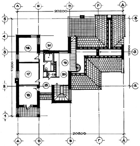
Плани
Фасади
Розрізи
Фото
<
>
<
>
<
>
Індивідуальне житло
Вілла "Шервуд", с. Страдч, Яворівський р-н, Львівська обл.
Автори:
Марченко В.С.
Рік:
Тип:
Індивідуальне житло
Статус:
Реалізовано
Опис:
Віла збудована в 1999 р.в складі 7-ми реалізованих типів будинків серіі по ген- плану жилого району експериментальноі забудови запроектованого і забудованого ТзОВ «ГРАЖДА» в с.Страдч.
Детальніше про проект

Віла збудована в 1999 р.в складі 7-ми реалізованих типів будинків серіі по ген- плану жилого району експериментальноі забудови запроектованого і забудованого ТзОВ «ГРАЖДА» в с.Страдч.

Віла призначена для проживання заможноі сім’ї, яка складається з декількох вікових груп і має потребу в створенні гармонійного жилого простору, типологічно сформованому по британським консервативним канонам. Бажання бачити свій інтер’єр вітальні в романтичному мисливському стилі навколо великого мармурового різного каміну з антресольним поверхом-бібліотекою і великою кількістю мисливських трофеїв в вигляді рогів, задало сценарій побудови тематичного інтер’єру.

Незмінна для всіх будинків серії конструктивно-модульна схема побудови функ- ііональних блоків дала можливість збільшити 5-ти кімнатну квартиру до 7-ми кім- нат (див.-віла «Нормандія»),одночасно значно збільшив площі холу, вітальні з столовою у вікторіанському стилі і «зимового саду».

Віла збудована на пологому пагорбі на фоні соснового лісу, що примикає безпосередньо з задньої сторони будинку.

В зоні відпочинку вітальні 72 м2,безпосередньо примикаючи до каміну, розташований великий кутовий вітраж скрізь який відкривається живописна картина культурного ландшафту, виконана по спеціальній методі ландшафтним архітектором.

ТЕХНІКО-ЕКОНОМІЧНІ ПОКАЗНИКИ

  • Кількість поверхів - 3
  • Площа забудови - 248 м2
  • Загальна площа - 213,58 м2
  • Площа господарських приміщень - 204,8 м2
  • Будівельний об’єм -1925 м3