Візуалізації
Плани
Фасади
Розрізи
Фото
<
>
<
>
Індивідуальне житло
Вілла "Чорний ялівець"
Автори:
Марченко В.С.
Рік:
Тип:
Індивідуальне житло
Статус:
Реалізовано
Опис:
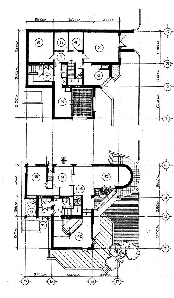
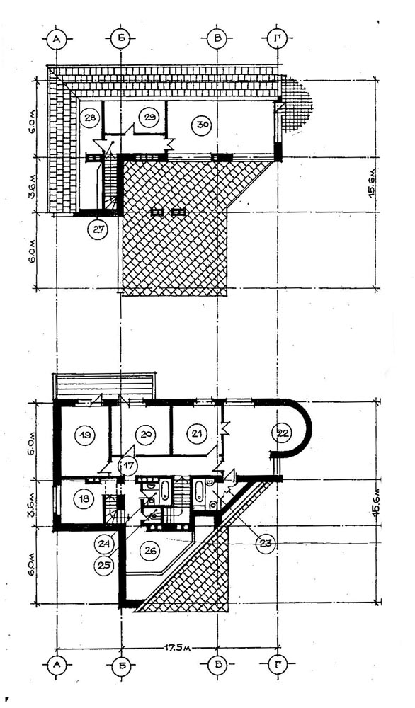
Вілла запроектована для висококомфортного проживання заможноі сім’ї в районі Ай-Петрі, яка володіє земельною ділянкою 0.5 га з якісними ландшафтними характеристиками і перепадним рельєфом в 4-6 градусів зі сторони головного фасаду.
Детальніше про проект

Вілла «Чорний ялівець» розроблена на стадіі РП на замовлення Ялтинськоі територіальноі ради.

Вілла запроектована для висококомфортного проживання заможноі сім’ї в районі Ай-Петрі, яка володіє земельною ділянкою 0.5 га з якісними ландшафтними характеристиками і перепадним рельєфом в 4-6 градусів зі сторони головного фасаду.

В залежності від побажань замовника вілла може бути побудована 8-ми або 10-ти кімнатною.

ТЕХНІКО-ЕКОНОМІЧНІ ПОКАЗНИКИ

  • Кількість поверхів - 3 (без підвала)
  • Загальна площа-354 м2 (8 кімнат)
  • Площа забудови-212,4 м2
  • Об’єм вілли -2480 м3