Візуалізації
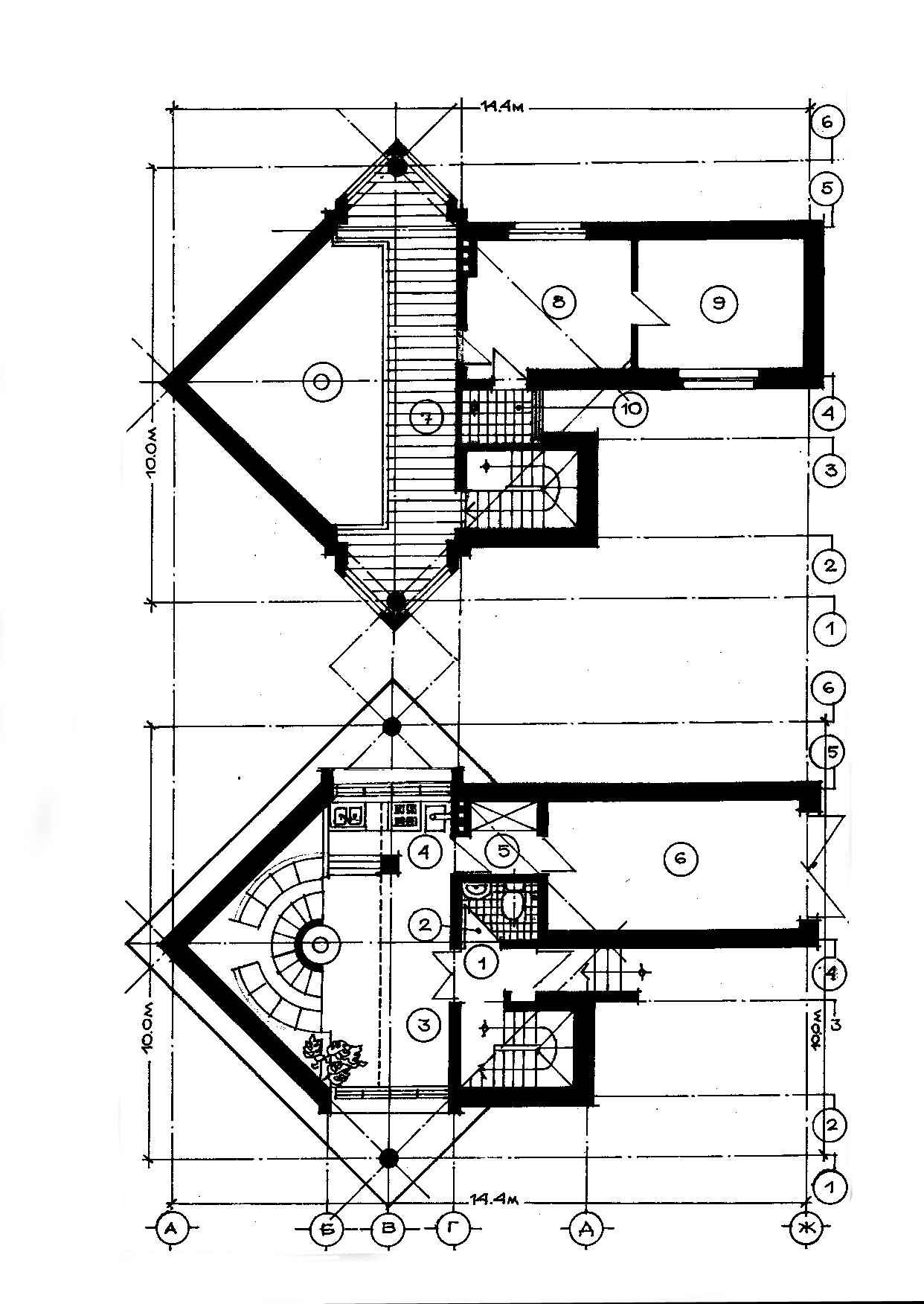
Плани
Фасади
Розрізи
Фото
<
>
<
>
<
>
Індивідуальне житло
Сімейний котедж "Діагональ"
Автори:
Марченко В.С.
Рік:
1988 р.
Тип:
Індивідуальне житло
Статус:
Реалізовано
Опис:

Детальніше про проект