Візуалізації
Плани
Фасади
Розрізи
Фото
<
>
<
>
<
>
Багатоквартирне житло
Житловий комплекс по вул.Повстанській в м.Львові
Автори:
Марченко В.С., констр. Наумов В.
Рік:
2000
Тип:
Багатоквартирне житло
Статус:
Реалізовано
Опис:

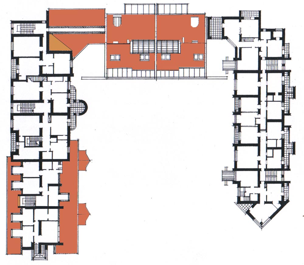
Планировочная схема комплекса представляет П-образную композицию,состоящую из трех разновеликих жилых секций, которые на отм. 6.00 соединены между собой двумя ярусами жилых помещений. Нижние ярусы этих объединений-образуют наполовину закрытые дворики-патио. В первом этаже всех трех секций расположены стоянки для индивидуального автотранспорта и инженерно-хозяйственные помещения.

Детальніше про проект

Планировочная схема комплекса представляет П-образную композицию,состоящую из трех разновеликих жилых секций, которые на отм. 6.00 соединены между собой двумя ярусами жилых помещений. Нижние ярусы этих объединений-образуют наполовину закрытые дворики-патио. В первом этаже всех трех секций расположены стоянки для индивидуального автотранспорта и инженерно-хозяйственные помещения.

Секция"А"-жилой дом на 13 кв. (из них-5 кв в двух уровнях.) переменной этажности.

Секция "Б"-2-х квартирный сблокированный жилой дом с приусадебными участками.

Секция "В"-5-ти этажный жилой дом на 14 кв.( из них - 4кв. в двух уровнях)