Громадські споруди
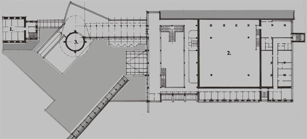
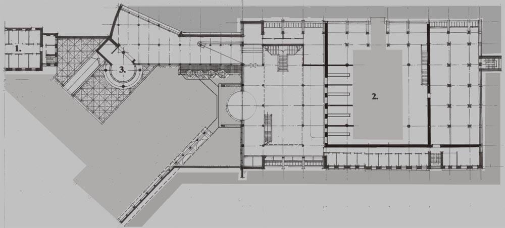
Існуючий будинок аеровокзалу згідно зі своєю структурою може бути переобладнаний виключно на офісно-відпочинковий центр. Ліве та праве загальні крила перетворюються в систему "зимових" садів з рестораном та фітобаром. Адміністративні приміщення 2-го поверху пристосовуються під офіси міжнародних перевізників
Реконструкція Львівського аеропорту
Автори:
Марченко В.С.
Країна:
Україна
Рік:
Тип:
Громадські споруди
Статус:
Проектні пропозиції
Опис:
Проектні пропозиції дають можливість побачити, який вигляд повинен мати Львівський аеропорт після закінчення реконструкції міжнародного терміналу. Творчим завданням для авторів була мета: як засобами архітектури зв'язати між собою на обмеженій площі будинок аеровокзалу (арх. Жовтовський - радянський класицизм) зі стилем міжнародного терміналу (Glasstec), об'єднавши їх в органічний ансамбль.
Існуючий будинок аеровокзалу згідно зі своєю структурою може бути переобладнаний виключно на офісно-відпочинковий центр. Ліве та праве загальні крила перетворюються в систему "зимових" садів з рестораном та фітобаром. Адміністративні приміщення 2-го поверху пристосовуються під офіси міжнародних перевізників
Детальніше про проект
м.Львів-одне з найчарівніших історичних міст Европи має всі підстави стати центром міжнародного туризму в Украіні. Сучасна міжнародна структура туризму вимагає крім об'єктів огляду національноі історіі,культури,екзотики-в першу чергу розвинуту інфраструктуру обєктів високого комфорту обслуговування туристів.В створенні відповідноі структури визначне місце належить об'єктам міжнародних комунікацій -залізничним вокзалам, аєропортам,тощо. Існуючий стан комплексу будівель Львівського аеропорту на сьогоднішній день не відповідає сучасним міжнародним вимогам на обслуговування авіапасажирів.
Відсутність нормативних площ касових залів, залів очікування авіарейсів, незручності по митному та прикордонному обслуговуванню пасажирів , повна відсутність площ під технологічні лінії по вивантаженню та завантаженню багажу - основні принципові вади сучасного стану Львівського аеропорту.
Ці вищенаведені невідповідності ще на початку дев яностих
років поставили перед адміністрацією аеропорту завдання на його реконструкцію за рахунок добудови нового корпусу міжнародного пасажирського терміналу і розвантаження існуючого будинку аеровокзалу.
Існуючий будинок аеровокзалу споруджений в 50р. розрахований на обслуговування 50 пасажирів в годину що, не відповідае сучасним нормативним вимогам,які ставляться до міжнародних об ектів такого класу.
Поруч, в пятидесяти метрах від аеровокзалу стоіть недобудована споруда міжнародного терміналу. Готовність цього будинку по будмонтажу - 60%. Проектна вартість терміналу - в виконанні закордонним підрядником -3.9 млн.у.о. Термін будівництва під ключ - 10-12 місяців. Проект дозволяе виконання будівельних робіт і ввід в експлуатацію по етапах.
Аналіз стану несучих будівельних конструкцій терміналу, проведений візуально ,без спеціальних досліджень, показав,що стан амортизаціі металокаркасу міжнародного терміналу е на даний момент поки -що задовільним. Але такий стан несучих конструктивів, якщо не прийняти термінових дій до відновлення будівництва міжнародного терміналу не збережеться більш як на рік-два. Потім придеться витратити немалі кошти на демонтаж металоконструкцій терміналу в результаті чого місто ЛЬВІВ втратить едину можливість мати свій хоч і невеликий але сучасний аеролорт.
Проектні пропозиціі дають можливість побачити ,який вигляд повинен мати Львівський аеропорт після закінчення реконструкціі міжнародного терміналу. Творчим завданням для авторів проекту була основна мета; як методами архітектури увязати між собою на одній площі завдовжки в двісті метрів будинок аеровокзалу (арх.Жолтовський-соціалістичний класи-цизм ) з сучасною архітектурою міжнародного терміналу (стиль "GLASSTEC"), об'єднавши іх в один архітектурний ансамбль .
Об'єднуючим елементом комплексу є критий перехід між двома існуючими спорудами -аеровокзалом і міжнародним терміналом, з видовою терасою на посадочну полосу і кафетеріем розташованим в першім ярусі переходу.
Існуючий будинок аеровокзалу по своій архітектурно-планувальній структурі повинен бути використаний виключно як офісно-відпочинковий центр, з перетворенням лівого і правого зального крила в систему "Зимових садів" з рестораном, фітобаром. Адміністративні приміщення другого поверху-необхідно використати під офіси міжнародних авіаперевізників.
Найбільше функціональне навантаження повинен нести на собі пасажирський термінал. Про це говорить сама планувальна схема очікування,посадки на рейси і висадки пасажирів з прибулих літаків. Площа терміналу - 620м2. Споруда передбачае одно часне обслуговування до 400 пасажирів.
Відсутність нормативних площ касових залів, залів очікування авіарейсів, незручності по митному та прикордонному обслуговуванню пасажирів , повна відсутність площ під технологічні лінії по вивантаженню та завантаженню багажу - основні принципові вади сучасного стану Львівського аеропорту.
Ці вищенаведені невідповідності ще на початку дев яностих
років поставили перед адміністрацією аеропорту завдання на його реконструкцію за рахунок добудови нового корпусу міжнародного пасажирського терміналу і розвантаження існуючого будинку аеровокзалу.
Існуючий будинок аеровокзалу споруджений в 50р. розрахований на обслуговування 50 пасажирів в годину що, не відповідае сучасним нормативним вимогам,які ставляться до міжнародних об ектів такого класу.
Поруч, в пятидесяти метрах від аеровокзалу стоіть недобудована споруда міжнародного терміналу. Готовність цього будинку по будмонтажу - 60%. Проектна вартість терміналу - в виконанні закордонним підрядником -3.9 млн.у.о. Термін будівництва під ключ - 10-12 місяців. Проект дозволяе виконання будівельних робіт і ввід в експлуатацію по етапах.
Аналіз стану несучих будівельних конструкцій терміналу, проведений візуально ,без спеціальних досліджень, показав,що стан амортизаціі металокаркасу міжнародного терміналу е на даний момент поки -що задовільним. Але такий стан несучих конструктивів, якщо не прийняти термінових дій до відновлення будівництва міжнародного терміналу не збережеться більш як на рік-два. Потім придеться витратити немалі кошти на демонтаж металоконструкцій терміналу в результаті чого місто ЛЬВІВ втратить едину можливість мати свій хоч і невеликий але сучасний аеролорт.
Проектні пропозиціі дають можливість побачити ,який вигляд повинен мати Львівський аеропорт після закінчення реконструкціі міжнародного терміналу. Творчим завданням для авторів проекту була основна мета; як методами архітектури увязати між собою на одній площі завдовжки в двісті метрів будинок аеровокзалу (арх.Жолтовський-соціалістичний класи-цизм ) з сучасною архітектурою міжнародного терміналу (стиль "GLASSTEC"), об'єднавши іх в один архітектурний ансамбль .
Об'єднуючим елементом комплексу є критий перехід між двома існуючими спорудами -аеровокзалом і міжнародним терміналом, з видовою терасою на посадочну полосу і кафетеріем розташованим в першім ярусі переходу.
Існуючий будинок аеровокзалу по своій архітектурно-планувальній структурі повинен бути використаний виключно як офісно-відпочинковий центр, з перетворенням лівого і правого зального крила в систему "Зимових садів" з рестораном, фітобаром. Адміністративні приміщення другого поверху-необхідно використати під офіси міжнародних авіаперевізників.
Найбільше функціональне навантаження повинен нести на собі пасажирський термінал. Про це говорить сама планувальна схема очікування,посадки на рейси і висадки пасажирів з прибулих літаків. Площа терміналу - 620м2. Споруда передбачае одно часне обслуговування до 400 пасажирів.