Візуалізації
Плани
Фасади
Розрізи
Фото
<
>
<
>
Громадські споруди
Торгово-офісний центр на вул.Липинського в м.Львові
Автори:
Марченко В.С, Гуринович Ю.В
Рік:
Тип:
Громадські споруди
Статус:
Проектні пропозиції
Опис:

Об’ємно-просторова композиція центру формувалась з умов маркетінгового завдання замовника, місто - будівельних умов його розташування на ділянці забудови і особливостей багатофункціональноі споруди.

Детальніше про проект

Об’ємно-просторова композиція центру формувалась з умов маркетінгового завдання замовника, місто - будівельних умов його розташування на ділянці забудови і особливостей багатофункціональноі споруди.
Архітектурний образ центру побудований на контрастному співвідношенні двох сформованих об’ємів, а саме:

  • 3-ри поверхового стилобатного об’єму торгово-ігрового центру
  • 6-ти поверховоі надбудови блоку офісних приміщень,який з сторони вул.Тучапського-Липинського виглядає як 9-ти поверхова будівля.

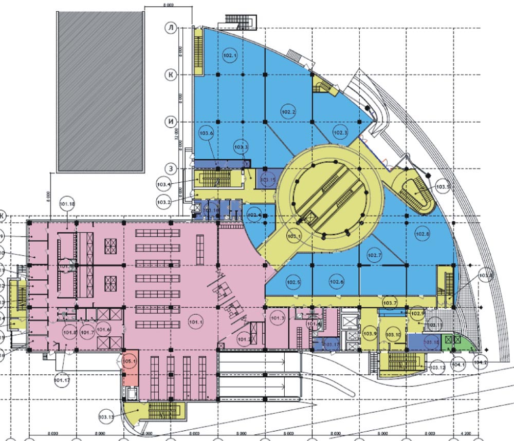
Стилобат торгово-офісного центру запроектований у формі ¼ круглоі призми в плані ,розташованоі круглою стороною до перехрестя вул.Липинського-Замарстинівськоі.
Центральна вісь головного входу в торгово-ігровий центр проходить скрізь триповерховий атріум, антресольні поверхи якого з’єднані між собою двома ескалаторами і панорамним ліфтом для обслуговування неповносправних на візках і завершується світловим ліхтарем тераси 4-го поверху. На цій відкритій терасі під декоративними парасольками розташовані літні торгові площі ресторану і фудкорту.

Головний вхід в блок офісних приміщень запроектований в стилобаті зліва від головного входу в торгово-ігровий центр. Підкреслюючи його рівнозначність головному входу в торговий центр в місці розташування входу запроектована триповерхова колонада з декоративним дашком-терасою ресторану.

Гідрогіологічні умови ділянки проектування зумовили проектування високого цокольного поверху в якому розташований паркінг на 68 автомобілів і технічні приміщення споруди.

Специфіка маркетінгового завдання на проектування з однієі сторони і складні протипожежні умови

функціонування торгово-офісного комплексу –з другоі сторони, обумовили винос всіх основних евакуаційних кліток назовні фасадів,що додало йому своєрідності. Три ліфти, -2-а вантажопідйомністю по 600кг забезпечують пересування відвідувачів на всі поверхи. Паркінг з’єднаний з торгово-офісним центром 3-ім ліфтом вантажопідйомністю 1000кг через тамбур-шлюз і використовується під час поже-жі для підйому пожежних команд.

Відповідно до маркетінгових пропозицій архітектурно-планувальна структура будівлі виглядає слідуючим чином в цокольному поверсі розташовані паркінг на 68 машиномісць.супермаркет господарських товарів і технічні приміщення обслуговування центру.

  • на першому поверсі – дві вестибюльних групи торгово-ігрового центру і адміністративноі будівлі. Основну частину займають приміщення торгового центру в складі торгових площ магазинів промгрупи (бутіків), розташованих навколо атріуму. За атріумом,по центральній осі запроектований супермаркет делікатесів.
  • на другому поверсі-схема розташування торгових площ виконана аналогічно схемі першого поверху навколо атріумного триповерхового простору розташовані бутіки,за ними на осі супермаркет електроніки.
  • на третьому поверсі розташовані приміщення ігрового центру,основним з яких є боулінг-центр на 6 доріжок, більярдна, фітнес зала і зала аеробіки, СПА-центр,а також обслуговуючі торгово-ігровий центр, ресторан з алкобаром і фудкорт на три спеціалітети.
  • четвертий поверх займають частково офісні приміщення,конференцзала,банкетна зала другого рівня ресторану і відкрита літня тераса фудкорту і ресторану-“під парасольками”.
  • п’ятий-восьмий поверхи запроектовані під офісні приміщення.
  • дев’ятий поверх наполовину є технічним, а наполовину офісним з обхідними терасами по периметру

Накриття дев’ятого поверху арковим дахом робить його напівмансардним. Чітке функціональне зонування споруди дозволяє відокремити потік відвідувачів від потоку службовців, обслуговуючого персоналу, та пересуванню товарів. Кожен з цих потоків має окремі вертикальні звязки. Крім того,для евакуаціі працівників офісного центру передбачені додатково дві сходових кліті типу Н1 і Н3.

Запроектовані приміщення громадського харчування – ресторан і фудкорт забезпечені необхідними (порозрахунку) вантажними підйомниками і мають своі завантажувальні. Те саме передбачено для завантажування складських приміщень супермаркетів на першому і другому поверхах.Завантажувальна рампа запроектована зі сторони господарського двору де одночасно можуть розвантажуватись дві фури.