Візуалізації
Плани
Фасади
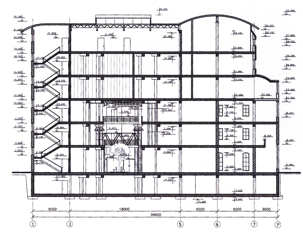
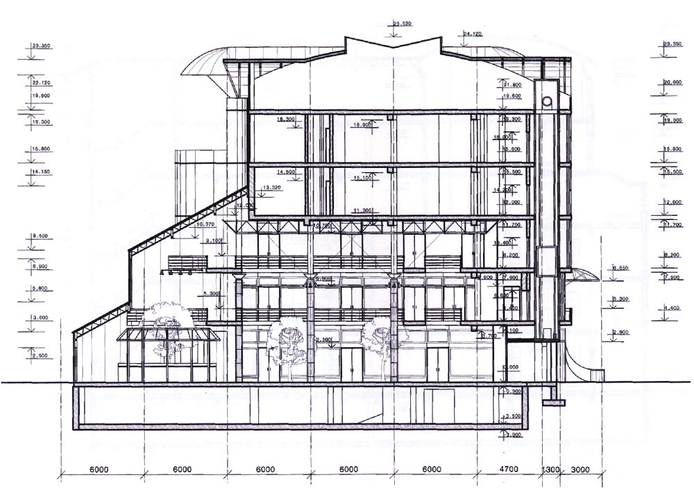
Розрізи
Фото
<
>
<
>
<
>
<
>
Громадські споруди
Торговий Центр по вул.Сліпого в м.Тернопіль
Автори:
Марченко В.С
Рік:
Тип:
Громадські споруди
Статус:
Проектні пропозиції
Опис:

Торгово – розважальний центр уявляє собою шестиповерхову споруду (шостий поверх мансардний). Перші три поверхи якої займає ТОРГОВИЙ ПАСАЖ і система пунктів громадського харчування, примикаючі до нього, а 4-6 поверхи запроектовані як система офісних приміщень і конференцзалів.

Детальніше про проект

Торгово – розважальний центр уявляє собою шестиповерхову споруду (шостий поверх мансардний). Перші три поверхи якої займає ТОРГОВИЙ ПАСАЖ і система пунктів громадського харчування, примикаючі до нього, а 4-6 поверхи запроектовані як система офісних приміщень і конференцзалів.

ТОРГОВИЙ ПАСАЖ запроектований як пішохідна крита торгова вулиця зі всіма атрибута ми екстер’єрного антуражу яка з’єднує площу перед головним фасадом комплексу і вулицею Й.Сліпого через скрізне подвір’я житлового будинку,що приблокований до ТРЦ. Для максимального забезпечення пасажу денним природнім світлом передбачений двосвітній "зимовий сад"- світловий курдонер з розташованим в ньому кафетерієм, який уявляє собою скошений прозорий скляний циліндр.

Образ об’єкту сформований на контрастному співвідношенні двох архітектурних ансамблів,які складають одне ціле-споруду торгово-розважального центра. З сторони вул.Й.Сліпого – це ансамбль історичноі триповерхової забудови,що продовжується всередину внутрішнєквартального простору і поступово переростає в сучасний 6-ти поверховий об’єм що сформований над цією історичною забудовою.

З трьох інших сторін-домінує сучасна архітектура шестиповерхового основного об’єму торгово розважального центру.

На об’ємно – просторове вирішення центру суттєво вплинули декілька містобудівельних факторів,які сформували своєрідний комплекс обмежень, а саме:

  • щільність існуючої оточуючої житлової забудови,наближеноі до проектованого об’єкту на відстані мінімальних санітарно-побутових і протипожежних розривів.
  • сформована внутрішня структура існуючих пішохідних і під’іздних шляхів, яка підказала організацію ще одноі пішохідної осі-торгового пасажу,що є структурованим простором проектованого ТРЦ.

Система бутіків розташована по обох сторонах скрізних галерей-антресолів пасажу, займає всі три поверхи і завершується штучним світловим ліхтарем, що імітує природнє світло. В підвальному поверсі запроектовані громадські туалети і автостоянка на 20 легкових автомобілів з організацією двох евакуаційних виїздів по різним сторонам ТРЦ безпосередньо на поверхню тротуарів.