Візуалізації
Плани
Фасади
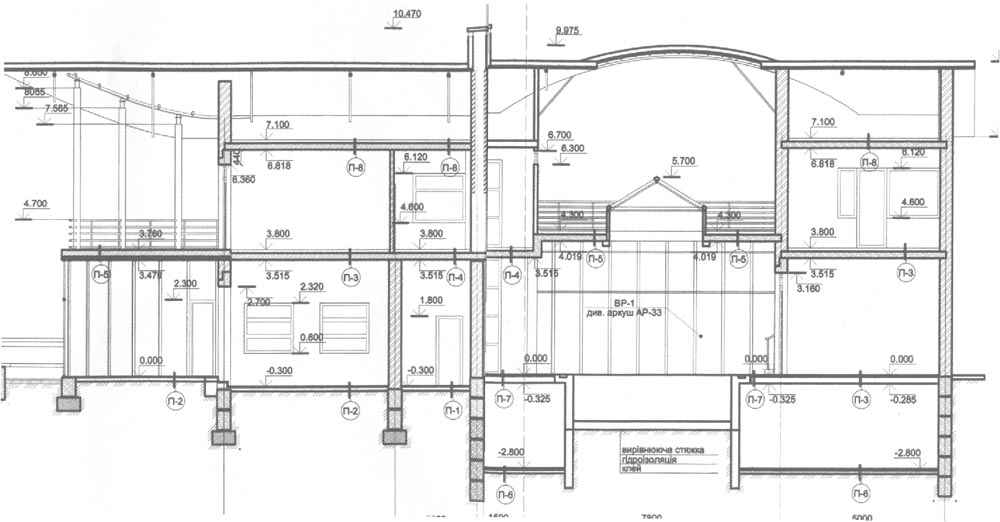
Розрізи
Фото
<
>
<
>
<
>
<
>
Індивідуальне житло
Вілла Б в с Підгірне Львівськоі обл
Автори:

Марченко В.С.

Рік:
Тип:
Індивідуальне житло
Статус:
Спроектований
Опис:

Віла "В" запроектована на рівній ділянці ( 0.45га) в складі житлової групи, яка на першому етапі забудові складається з двох будинків в мальовничому селі Підгірне Пустомитівського району під м.Львовом. Бажання двох сусідів-замовників побудувати житлові будинки в складі однієї групи мало під собою давнішні дружні виробничі і людські стосунки і уподобання.

Детальніше про проект

Віла "В" запроектована на рівній ділянці ( 0.45га) в складі житлової групи, яка на першому етапі забудові складається з двох будинків в мальовничому селі Підгірне Пустомитівського району під м.Львовом. Бажання двох сусідів-замовників побудувати житлові будинки в складі однієї групи мало під собою давнішні дружні виробничі і людські стосунки і уподобання.

Враховуючи це, автор проекту запропонував забудовникам створити спільний внутрішній простір, вирішений в вигляді озерного ландшафту з примикаючим до нього штучно сформованим рельєфом, який би створював передній план у виг-ляді " карпатарію" на двометровому пагорбі, розташованому між двома вілами.

Декорованим елементом пагорбу є захований в ньому пункт охорони і спостереження житлового комплексу з кімнатою відпочинку охорони.

Образ будинку створений в стилі "Техно-мінімалізм" Об’ємно –просторова композиція будинку створена на формуванні двох крил житлових груп навколо цент-ральноі домінанти –скляноі усіченоі призми-"холу-зимового саду" Розкритість внутрішнього простору холу контрастує з закритістю внутрішнього простору крил.

Функціональне зонування приміщень передбачає диференціацію як по поверхах так і територіально на кожному поверсі. Група денних приміщень –хол,вітальня, кухня-столова,домашній кінотеатр для повсякденного користування знаходиться на першому поверсі в лівому від холу крилі. Наявність дворівневих просторів холу і вітальні,на антресолях яких розташована бібліотека,роблять простір легким і світлим.

Справа від холу (на першому поверсі) розташований комплекс приміщень оздо-ровчого та відпочинкового характеру –критий басейн з душовими кабінами і фінською парною,більярдною з баром. До них приблокована крита стоянка-гараж на три легкових автомобіля.

Група спальних приміщень на другому поверсі будинку в складі чотирьох кімнат диференційовані на спальні дорослих (2шт) і дитячі спальні. Спальні для дорослих безпосередньо зблоковані з ванними приміщеннями,дитячі мають одну спільну ванну з входом з коридору.

Конструктивна схема передбачає монолітний з/б каркас з заповненням стіновими конструкціями з перлітобетону і вітражними фасадними системами. Будинок забезпечений всіма необхідними інженерними комунікаціями.