Візуалізації
Плани
Фасади
Розрізи
Фото
<
>
<
>
<
>
Громадські споруди
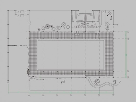
Санаторій Янтар ЗАТ Трускавецькурорт (Басейн)
Автори:
Марченко В.С.
Рік:
Тип:
Громадські споруди
Статус:
Проектні пропозиції
Опис:

Критий плавальний басейн санаторію "ЯНТАР" запроектований на місці існуючого відкри-того басейну-градірні перед головним корпусом санаторію, згідно завдання на проектування виданого адміністрацією ЗАТ"Трускавецькурорт".

Детальніше про проект

Критий плавальний басейн санаторію "ЯНТАР" запроектований на місці існуючого відкри-того басейну-градірні перед головним корпусом санаторію, згідно завдання на проектування виданого адміністрацією ЗАТ"Трускавецькурорт".
Каркас басейну-залізобетонні конструкціі. Несучі конструкціі покриття – металеві аркові ферми. Для продовження ширини покриття без збільшення висоти ферм передбачені консольні аркові півферми.
Покриття – металевий лист "Ранніла" з високим подвійним фальцем пофарбований по ;спеціальній технологіі. Утеплення покриття – підшивні мати мінерального волокна фірми "ROCKWOOL".
Зовнішні стіни – ефективна цегляна кладка в півтори цегли з внутрішнім заповненням ізоляційними плитами фірми "DOW". Зовнішній шар стіни –обличкувальна цегла Слобожанського керамічного заводу. Вітражі – металопластикові склопакети.
Вартість басейну - 1500000 грн.