Візуалізації
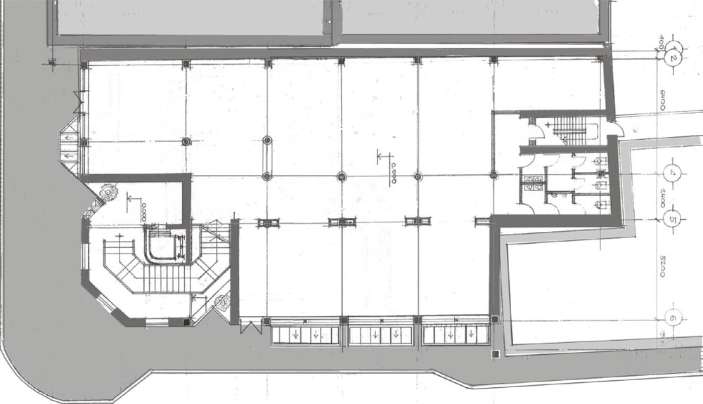
Плани
Фасади
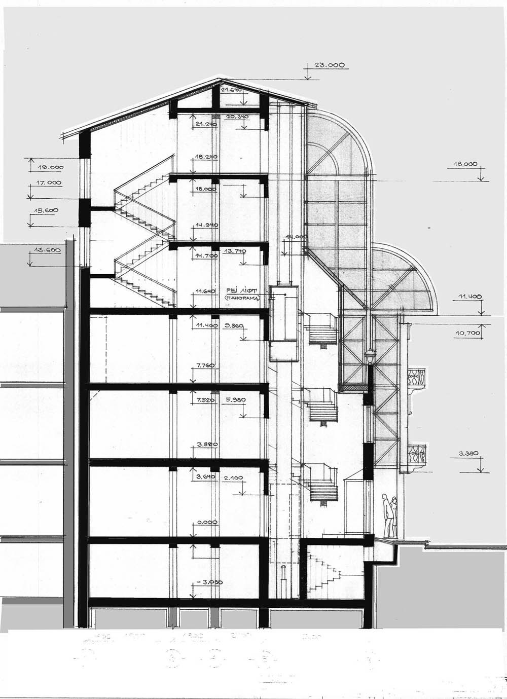
Розрізи
Фото
<
>
<
>
<
>
Громадські споруди
Офісний будинок фірми Світанок на Проспекті Свободи в м.Львові
Автори:
Марченко В.С., Марченко Д.В.
Рік:
Тип:
Громадські споруди
Статус:
Проектні пропозиції
Опис:

Яким повинен бути архітектурний образ відомої в Украіні фірми-виробника фасадних систем в історичному середовищі міста на початку третього тисячоліття? Що суттєво впливає на пошук цього образу? Принциповим є той факт що на місці новобудови існував будинок кінця ХІХ-початку ХХ століття

Детальніше про проект

Яким повинен бути архітектурний образ відомої в Украіні фірми-виробника фасадних систем в історичному середовищі міста на початку третього тисячоліття? Що суттєво впливає на пошук цього образу? Принциповим є той факт що на місці новобудови існував будинок кінця ХІХ-початку ХХ століття

  • зміна функціонального призначення (готель на офісну споруду)
  • зміна поверховості (6-ть поверхів замість існуючих 4-х)
  • зміна репрезентативності споруди (опирання на новітні будівельні матеріали,які би висловлювали філософію діяльності фірми і одночасно рекламували іі)
  • оточуюче історичне середовище,в яке гармонійно мав-би бути вписаний об’єкт

ПРИЙНЯТА КОНЦЕПЦІЯ ОБРАЗУ

  1. В проектне рішення закладений формоутворюючий прийом,який створює ілюзію оп-тичного пониження 6-ти поверхового кутового фасаду до 3-4 поверхів оточуючої забудо-ви. Тому 4-ий поверх запроектований в вигляді ферми-карнізу,яка перебиває (в перспек-тивному скороченні знизу)-5-тий і 6-тий поверхи будинку зі сторони проспекту Свободи. З цією ж метою кутове рішення будинку терасоване в три яруси,що втікають від вулиці вглиб будинку по мірі підняття поверхів з третього до п’ятого.
  2. Характерна для Львова стрічкова лінія забудови формує вздовж проспекта Сободи суцільну смугу дво-триповерхових фасадів квартальноі історичноі забудови і безумовно повинна зберігатися хоча б формально в формі збереженоі історичноі декораціі, підвішеної на сучасних металевих конструкціях новозбудованого будинку.
  3. Таке шанобливе ставлення до архітектурноі спадщини рідного міста показало б професійне розуміння автора проекту по вирішенню делікатного питання "гармонізаціі" сучасного по функціі і формі будинку в оточуючому історичному середовищі і дозволяло залишатись чесним перед своїм професійним сумлінням. ( Вважаю принципово непрофесійним відтворення "сурогатів" зруйнованих часом і завчасно не збережених будинків, якщо вони не є визначними памятками архітектури) Прикладів саме такого підходу дотримуються всі європейські архітектурні школи.
  4. Для того,щоби оптично зменшити масу набудови 5-го і 6-го поверхів,фасадну системунеобхідно виконати в дзеркальному склі Пінкгільтон, яке відбиває небо і розчиняється в ньому.
  5. Ферми 4-го поверху запроектовані з півкруглим верхнім поясом ,який накривається листовою міддю в підтримку аналогічно виконаного даху театру Опери та балету.