Громадські споруди
Торговий Центр по вул.Стебницькій в м.Трускавець
Автори:
Марченко В.С.
Країна:
Україна
Рік:
2001
Тип:
Громадські споруди
Статус:
Проектні пропозиції
Опис:
Ескізний проект торгового центру виконано на замовлення приватного інвестора в 2001 році. Ділянка під будівництво знаходиться в житловому районі м.Трускавець з південноі сторони вул.Стебницької на пересіченні з вул.Івасюка та місцевим проїздом.
Детальніше про проект
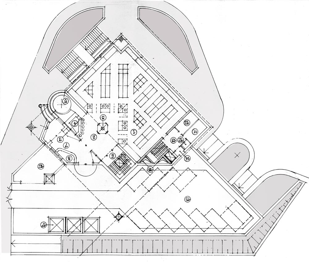
Конфігурація ділянки в плані правільна трапеція,що задало композиційне рішення плану торгового центру-діагонально розвернутого до вул.Стебницької квадрату.
Перепад відміток існуючого рельєфу,що спадає на південь до вулиці - 5 метрів.
Це задало вертикальне зонування споруди та іі поверховість - 3 поверхи, які мають незалежні доступні входи з рельєфу на кожний з рівнів (-3.60, 0.00, +3.60)
Крім того,це дозволило організувати підземну автостоянку для службового автотрансорту і розвантажувальний дебаркадер (на позначці -3.75) і відкриту автостоянку для відвідувачів над нею (на позначці -0.15) На нижньому рівні торгового центру знаходиться магазин самообслуговування продтоварів, кафе на 24 посадкових місця, підсобки та службові приміщення.
На середньому рівні запроектовані промтоварний магазин, експрес-бар, приміщення персоналу. На верхньому рівні запроектовані торгова зала універсаму.Приміщення персоналу, підсобні та технічні приміщення.
Всі три поверхи з’єднані між собою двома сходово-ліфтовими вузлами-для відві-дувачів і для персоналу. Загальна площа торгового центру складає 2200м2.Торгова площа-1100м2
Перепад відміток існуючого рельєфу,що спадає на південь до вулиці - 5 метрів.
Це задало вертикальне зонування споруди та іі поверховість - 3 поверхи, які мають незалежні доступні входи з рельєфу на кожний з рівнів (-3.60, 0.00, +3.60)
Крім того,це дозволило організувати підземну автостоянку для службового автотрансорту і розвантажувальний дебаркадер (на позначці -3.75) і відкриту автостоянку для відвідувачів над нею (на позначці -0.15) На нижньому рівні торгового центру знаходиться магазин самообслуговування продтоварів, кафе на 24 посадкових місця, підсобки та службові приміщення.
На середньому рівні запроектовані промтоварний магазин, експрес-бар, приміщення персоналу. На верхньому рівні запроектовані торгова зала універсаму.Приміщення персоналу, підсобні та технічні приміщення.
Всі три поверхи з’єднані між собою двома сходово-ліфтовими вузлами-для відві-дувачів і для персоналу. Загальна площа торгового центру складає 2200м2.Торгова площа-1100м2