Візуалізації
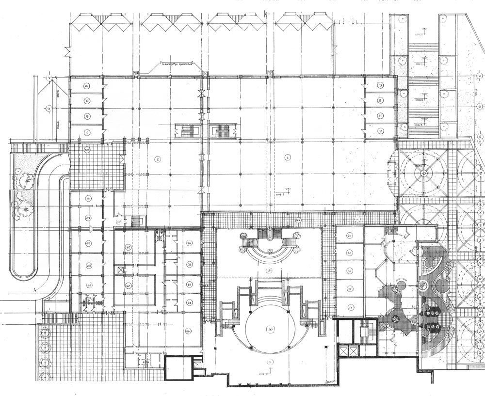
Плани
Фасади
Розрізи
Фото
<
>
<
>
<
>
Громадські споруди
Торговий центр ТЕМАРА по вул.Кн.Ольги в м.Львові
Автори:

Марченко В.С.

Рік:
Тип:
Громадські споруди
Статус:
Проектні пропозиції
Опис:

Архітектурний образ споруди торгового дому "Темара" неподільно зв’язаний з конструктивним його вирішенням а також з існуючим розташуванням основних об’ємів споруди центрального універмагу,на конструкціях якого і пропонується створення ринкового комплексу.

Детальніше про проект

Архітектурний образ споруди торгового дому "Темара" неподільно зв’язаний з конструктивним його вирішенням а також з існуючим розташуванням основних об’ємів споруди центрального універмагу,на конструкціях якого і пропонується створення ринкового комплексу.

Організація торгових приміщень частини комплексу (торговий центр) навколо існуючого двору на відм. 0.000 з надбудовою над ним ще одного поверху, органічно привело до створення зимового саду-розпридільника торгових потоків. Цей простір необхідно було перекрити світлопрозорим ліхтарем, який сформував архітектурний образ комплексноі споруди торгового дому.

Планувальна структура об’єкту складається частково з приміщень ЦУМу, які необхідно було реконструювати під нову функцію торгового центру, частина якого –критий продуктовий ринок пропонувався проектом з винесенням його ближче до вул..В.Великого і добудовою частини приміщень в нових структурних конструкціях.

Найскладнішим завданням проекту було зведення покриття об’єму споруди,що віддана під приміщення критого ринку і складські приміщення (80х50м). Зважуючи на те,що фундаменти,а також і конструкціі існуючого стилобатного поверху ЦУМу находяться в умовах карстонебезпечних грунтів ,навантаження від надбудови другого поверху повинні бути мінімальними, а це визначило архітектоніку прийнятих конструктивних рішень.

Металевий несучий ригельно- стійковий каркас другого поверху накритий системою аркових металодахів фірми "Florprofil" з влаштуванням свтлових ліхтарів освітлення на коньках арок. Ці дахи є самонесучими і не вимагають додаткових несучих ферм, що значно здешевлює будівництво ,а також зменшує навантаження на конструкціі першого поверху і фундаменти. Стінові заповнення також є легкими і запроектовані в сендвічпанелях,які монтуються на несучий металокаркас.

Головний фасад,що виходить на вул. Володимира Великого запроектований в вигляді п’яти паркових ферм,радіусом 8.4м,що горизонтальною хвилястою лінією контрастує з вертикально розташованим членінням будинку ЦУМу

ОБ’ЄМНО –ПРОСТОРОВЕ ВИРІШЕННЯ ТОРГОВОГО ДОМУ

Торговий дім "Темара" складається з чотирьох функціонально зв’язаних між собою і одночасно незалежних груп приміщень. А саме:

  • автостоянки на 94 легкових автомобіля, обмеженоі з сторони вул.В.Великого стіною з 16 кіосків
  • двоповерхового торгового приміщення продуктового базару,розташованого над автостоянкою і зв’язаного з нею системою грузових підйомникі. Для цієї торговоі функціі використана існуюча автостоянка на естакаді з добудовоі на другому поверсі додатковоі торговоі площі і перекриття другого поверху по всій площі реконструйованих площ ТзОВ "Ресторан Беркут"
  • двоповерхового приміщення торгового центру , сформованого навколо функціонально необхідного хола-розпридільника в формі атріума-зимового саду. На першому рівні атріума "зимовий сад" розташований торговий комплекс "Світ дитинства",який складається з іграшкового магазину, дитячого кафе на 24 посадкових місця, а також кафе-морозиво "Ігровий майданчик".

За основу функціональноі організаціі комплексу "Світ дитинства" прийнята концепція відпочинку дітей під наглядом працівників торгового центру в той час коли батьки зайняті закупами. З протилежноі сторони зимового саду знаходиться ряд магазинів промтоварної групи і магазин дитячого харчування.

На другому рівні торгового дому (на антресолях) знаходиться магазин промтоварів, а також Салон краси ,який має окремий вихід з сторони вул..Княгині Ольги. В салоні краси передбаче-ний чоловічий салон, жіночий салон з відділенням масажу, віражною, манікюрним і педікюрним відділеннями.

На антресолі веде тримаршева сходова клітка з декоративним фонтаном і скульптурою пісяючого хлопчика –символа Брюсселю. Зимовий сад освітлений верхнім світлопрозорим ліхтарем ,який дає змогу освітити всі торгові площі,що знаходяться в об’ємі зимового саду -блоку складських приміщень а також офісів,що знаходяться компактно справа від комплексу приміщень торгового центру "Світ дитинства"

Для вирішення питань завантаження торгових приміщень товаром,проектом передбачена організація загрузочних рамп з чотирьох сторін споруди. Існуюча грузова рампа в блоці складських приміщень виконує питання завантаження складів на відм 0.000 і грузовим підйомником на відм. 3.700

Завантаження товарами приміщень продуктового базару на відм.3.700 забезпечує грузова існуюча рампа з заїздом по пандусу з відм.0.000 ,а також три грузові підйомники з відкритої грузовоі площадки автостоянки для легкового транспорту (що довозиться виробниками с/х продуктів на власному транспорті).

Завантаження салону краси проводиться з площадки,розташованоі біля головного входу в ЦУМ (вул.Кн.Ольги) Загрузка кафетерію – з головного входу в торговий центр.

Документація погоджена обласною СЕС і пожінспекцією.