Візуалізації
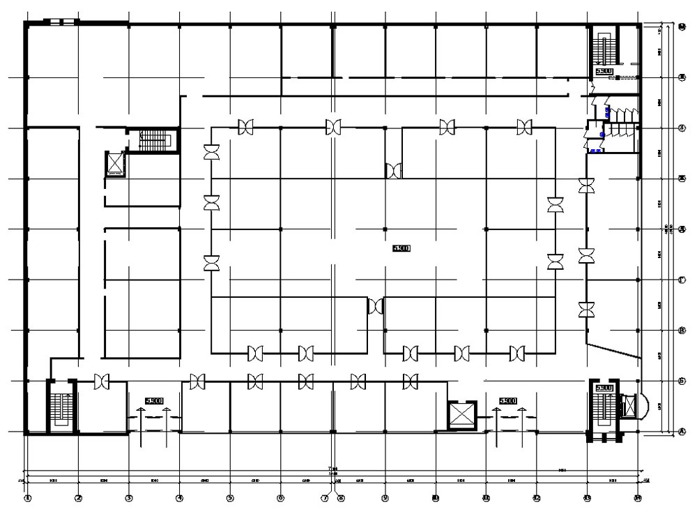
Плани
Фасади
Розрізи
Фото
<
>
<
>
<
>
<
>
Громадські споруди
Супермаркет на вул.Садовій в м.Львові
Автори:

Марченко В.С., Чаплінський Ю.В.

Рік:
2004
Тип:
Громадські споруди
Статус:
Проектні пропозиції
Опис:

Проектні пропозиціі пристосування існуючого складського модуля К-2 під супермаркет

"ЕВРОПАРК" по вул..Садовій у м.Львові виконані на замовлення торговоі групи"Евро-інвест-Віжен".

Прикладів успішного пристосування недобудованих або знятих з балансу виробничих

об’єктів чимало. І в кожному випадку приходиться доводити існуючі будівельні кон-струкціі до нових функціональних і естетичних вимог,що вимальовують новий архітек-турний образ споруди.

Детальніше про проект

Проектні пропозиціі пристосування існуючого складського модуля К-2 під супермаркет

"ЕВРОПАРК" по вул..Садовій у м.Львові виконані на замовлення торговоі групи"Евро-інвест-Віжен".

Прикладів успішного пристосування недобудованих або знятих з балансу виробничих

об’єктів чимало. І в кожному випадку приходиться доводити існуючі будівельні кон-струкціі до нових функціональних і естетичних вимог,що вимальовують новий архітек-турний образ споруди.

Особливостями об’єкту запланованого під реконструкцію,полягали в тому,що він розта

шований безпосередньо біля існуючого продуктового базару "Новий" з кінцевою авто-

станцією на ньому.

Розвинута транспортна інфраструктура,великі потоки потенційних відвідувачів і покупців

добре сполучення з районами області, вплинули на прийняття інвестором рішення про функціональне використання складського модуля під супермаркет.

Наявна конструктивна схема існуючого складського модуля,несучий каркас якого скла-дається з металевих колон і балок на першому поверсі по яких укладені залізобетонні плити перекриття –доповнили чітку схему використання цього приміщення. Крок несу- чих елементів становить 12м,прогонів-6м. На другому поверсі на несучі металеві колони

встановлено просторові ферми а покриття виконано з утепленого профнастилу.

Огороджувальні конструкціі запроектовані в системі "вентильованого фасаду" а віконні заповнення –у вітражних фасадних системах з точковим кріпленням склопакетів.

У комплексі з двоповерховою спорудою супермаркету запроектований блок автостоя-нок на 320 автомобілів у трьох рівнях: підземному,наземному і надземному- на дебар-кадері з безпосередніми виходами в торгові зали.

На першому поверсі супермаркету загальною площею 1864,9м2 роташовані:

  • торгова площа продуктової зали (1297м2)
  • крамниці-15 секцій типу "бутік" (568м2)

Завантаження торгових площ проводиться з складських приміщень,безпосередньо спо-лучених з рампою,яка розташована з боку господарського двору супермаркету.

На другому поверсі супермаркету розміщені:

  • торгова площа промтоварної групи товарів (1050м2)
  • інтернет-кафе (150м2)
  • офісні приміщення адміністраціі супермаркету (317,5м2)
  • дитяча ігрова кімната (35м2)
  • складські приміщення промтоварів (200м2)
  • побутові приміщення (146,5м2)

На терасі даху супермаркету запроектоване літнє кафе на 60 місць