Візуалізації
Плани
Фасади
Розрізи
Фото
<
>
<
>
<
>
<
>
Громадські споруди
Будинок адмінуправління видавничого центру Школярик в м.Тернополі
Автори:
Марченко В.С.
Рік:
Тип:
Громадські споруди
Статус:
Спроектований
Опис:

Загальна архітектурна композиція адмінбудинку складалась згідно декількох факторів, які суттєво вплинули на його архітектурний образ.

Це в першу чергу Завдання на проектування,яке сформулювало бачення Замовни-ком свого офісу. Друге - умови розташування будинку в безпосередній близькості до парковоі територіі.

Третє-бажання автора проекту відтворити образ "романтичного" середовища, яке би об’єднало в собі адміністративну функцію будинку з образом фірми, яка філософські формулює в своїх виробах дитячу фантазію, безпосередність, відкритість, чистоту.

Детальніше про проект

Загальна архітектурна композиція адмінбудинку складалась згідно декількох факторів, які суттєво вплинули на його архітектурний образ.

Це в першу чергу Завдання на проектування,яке сформулювало бачення Замовни-ком свого офісу. Друге - умови розташування будинку в безпосередній близькості до парковоі території.

Третє-бажання автора проекту відтворити образ "романтичного" середовища, яке би об’єднало в собі адміністративну функцію будинку з образом фірми, яка філософські формулює в своїх виробах дитячу фантазію, безпосередність, відкритість, чистоту.

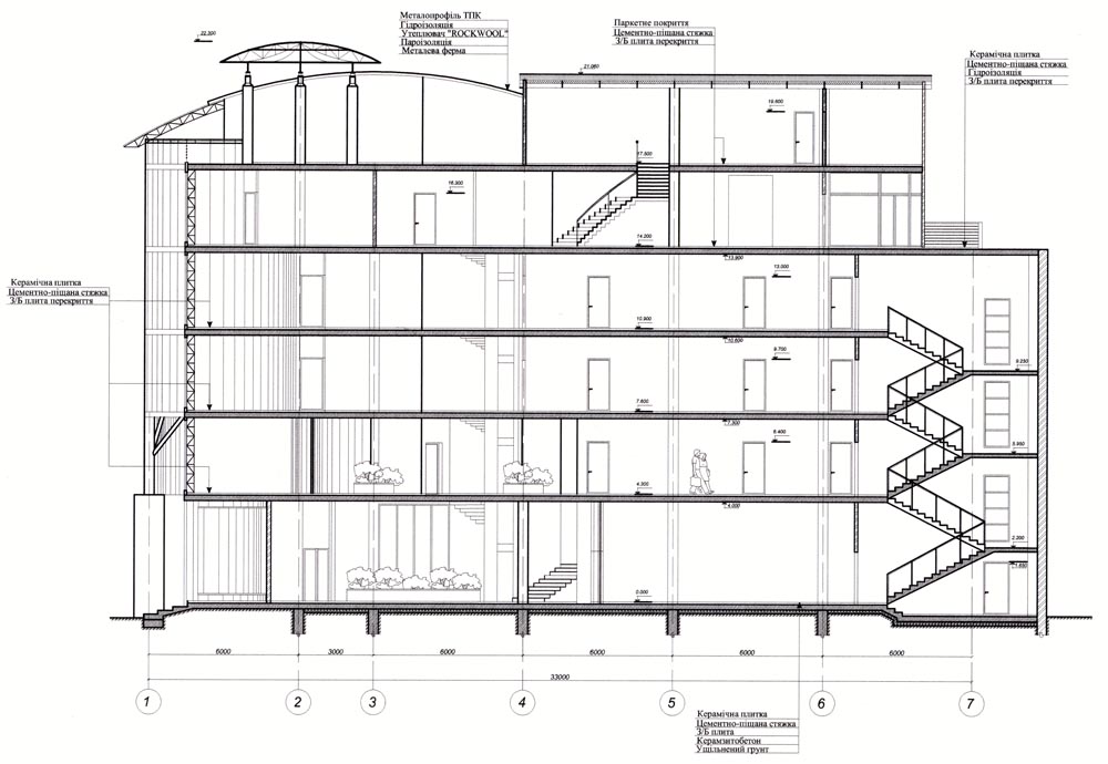
Будинок запроектований в 6 поверхів. Перші п’ять поверхів займають офісні приміщення. На шостому поверсі розташовані приміщення для відпочинку і фізичного оздоровлення відвідувачів, вони мають надаватися в аренду. Цей поверх запроекто-ваний з зеленими терасами для відпочинку і споглядання паркового ландшафту. На ньому розташовані зала аеробіки і бодібілдінгу з допоміжними приміщеннями і багатофункціональна зала для проведення урочистих міроприємств.

Романтичний образ споруди сформований на м’яких , ускладнених членуваннях фасадів з максимальним включенням озеленених зон-на терасах,на фронтоні, на окремих елементах малих архітектурних форм.

Велику увагу було приділено формуванню аванзони головного входу. З сторони ентральноі алеі парку запроектовані гранітні колони з капітелями –квітниками, що переходять у колони – пропілеі головного входу.

Акцентом архітектурноі композиціі споруди є кутовий фасад,на якому домінує напів-циліндричний в плані вітраж фасадної системи. Його складний абрис – (форма вітра-жу в плані міняється на кожному поверсі, в той час, як основний барабан по фасаду є на трьох поверхах незмінним) - забраний з двох сторін в своєрідну палітурку книжки, яка запроектована як вентильована фасадна система з обличкуванням алюкобондом.

Завершується фасадна система центрального вітражу фронтоном-терасою, на якій розміщена ажурна металопластикова парасолька. Планувальна схема будинку побудована на з’єднанні під прямим кутом двох крилофісного призначення. Адміністративні приміщення розташовані по обі сторони вздовж кожного крила з коридором – галереєю між ними. Кожне крило зв’язане з центральним холом в місці стика, де знаходиться центральна сходова кліть з ліфтом.

Для забезпечення протипожежних умов евакуаціі персоналу адмінбудинку запроектовані дві сходових клітки – одна, з вестибюлю С2 з пасажирським ліфтом, друга – вторці правого крила СК-1 з панорамним пасажирським ліфтом.

Конструктивна схема будинку – монолітний каркас з навісними вентильованими фасадними конструкціями, дозволяє гнучко проводити функціональне зонування офісних приміщень всередині будинку, використовуючи склопрозорі перегородки з сторони коридору і між суміжними приміщеннями.

Вертикальні інженерні комунікаціі зібрані компактно в двох місцях де розташовані туалети,горизонтальні комунікаціі розташовуються в коробах за підшивною стелею.

Для опалення адмінбудинку передбачено влаштування приблокованоі котельні на газі,яка по архітектурі фасадів продовжує стилобатну частину бокового фасаду.

Будинок адмінуправління ТзОВ "Видавництво"Школярик " має арковий шатровий дах з накриттям оцинкованим покрівельним залізом по металевим фермам. В місцях накриття терас п’ятого і шостого поверхів – оцинковане покрівельне залізо замінено на касети з тонованого армованого скла.

Т-подібні облегшені ферми-балки перголи над терасами 5-го-6-го поверхів виконані з легкосплавного металу