Візуалізації
Плани
Фасади
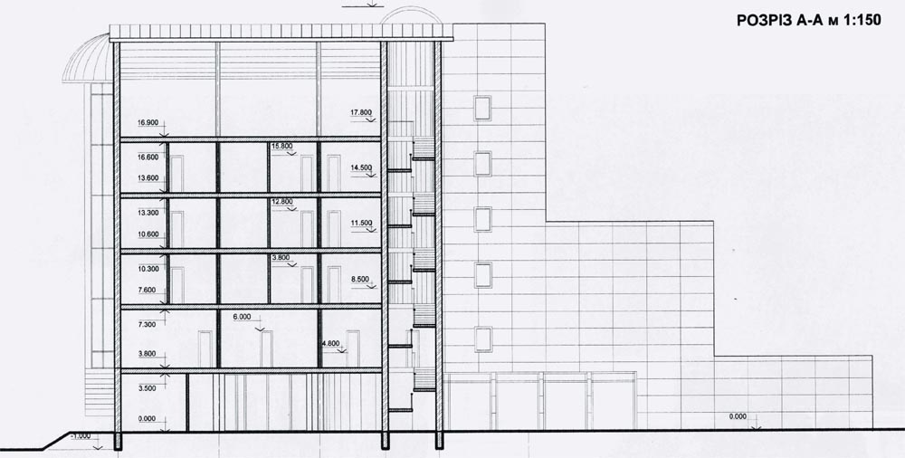
Розрізи
Фото
<
>
<
>
<
>
Громадські споруди
Торгово Офісний Центр-Алана в м.Тернопіль
Автори:
Марченко В.С
Рік:
Тип:
Громадські споруди
Статус:
Проектні пропозиції
Опис:

Проект реконструкціі одноповерхових гаражів під торгово-офісний центр ТзОВ "Ала-на" в м.Тернопіль виконаний на стадіі "ПП" для обґрунтування можливостей його будівництва (заг.площа-6400м2) на ділянці,яка займає площу 0.15га і зі всіх сторін щільно оточена прилеглою житловою забудовою.

Детальніше про проект

Проект реконструкціі одноповерхових гаражів під торгово-офісний центр ТзОВ "Ала-на" в м.Тернопіль виконаний на стадіі "ПП" для обґрунтування можливостей його будівництва (заг.площа-6400м2) на ділянці,яка займає площу 0.15га і зі всіх сторін щільно оточена прилеглою житловою забудовою.

Комплекс містобудівельних обмежень в першу чергу стосується побутових санітар-них розривів від запроектованого об’єкту до прилеглих житлових будинків. Ці розриви вплинули на формоутворення будинку,його архітектурний образ і конфігурацію.

Поверховість сусідніх будинків коливається від 2-х до 5-ти поверхів і згідно містобудівельного обгрунтування це суттєво вплинуло на поверховість проектованого торгово-офісного центру (5-поверхів з мансардою)

Для розкриття об’ємно –планувальноі структури проектованого об’єкту була розробле на схема санітарних розривів. Динаміка змін в відстанях цих розривів по мірі зростання поверховості проектованого будинку до найближчого двоповерхового житлового будинку окреслила його плану-вальну схему і архітектуру. Торгово-офісний центр має підкреслено сформований трикутний план з сферично розтягнутим по ньому головним фасадом, зорієнтованим на внутрішній напівзакритий простір головного входу.

Сам головний фасад по мірі зростання поверхів все далі і далі терасами відступає від прилеглого двоповерхового житлового будинку,збільшуючи санітарні розриви до оптимальних. На цокольному і першому поверхах запроектований магазин-салон продажі автомобілів і кафетерій з відкритою терасою. На 3-5 поверхах і в мансарді розташовані офісні приміщення під здачу в аренду.

На перспективу заплановано реконструювати двоповерховий житловий будинок під громадський центр дозвілля і з’єднати його переходами з запроектованим торгово-офісним центром.