Візуалізації
Плани
Фасади
Розрізи
Фото
<
>
<
>
<
>
<
>
Громадські споруди
Санаторно-оздоровчий комплекс Прикарпаття НБУ в м.Яремче 1 черга
Автори:
Марченко В.С., Скавіна О.І.
Рік:
Тип:
Громадські споруди
Статус:
В процесі будівництва
Опис:

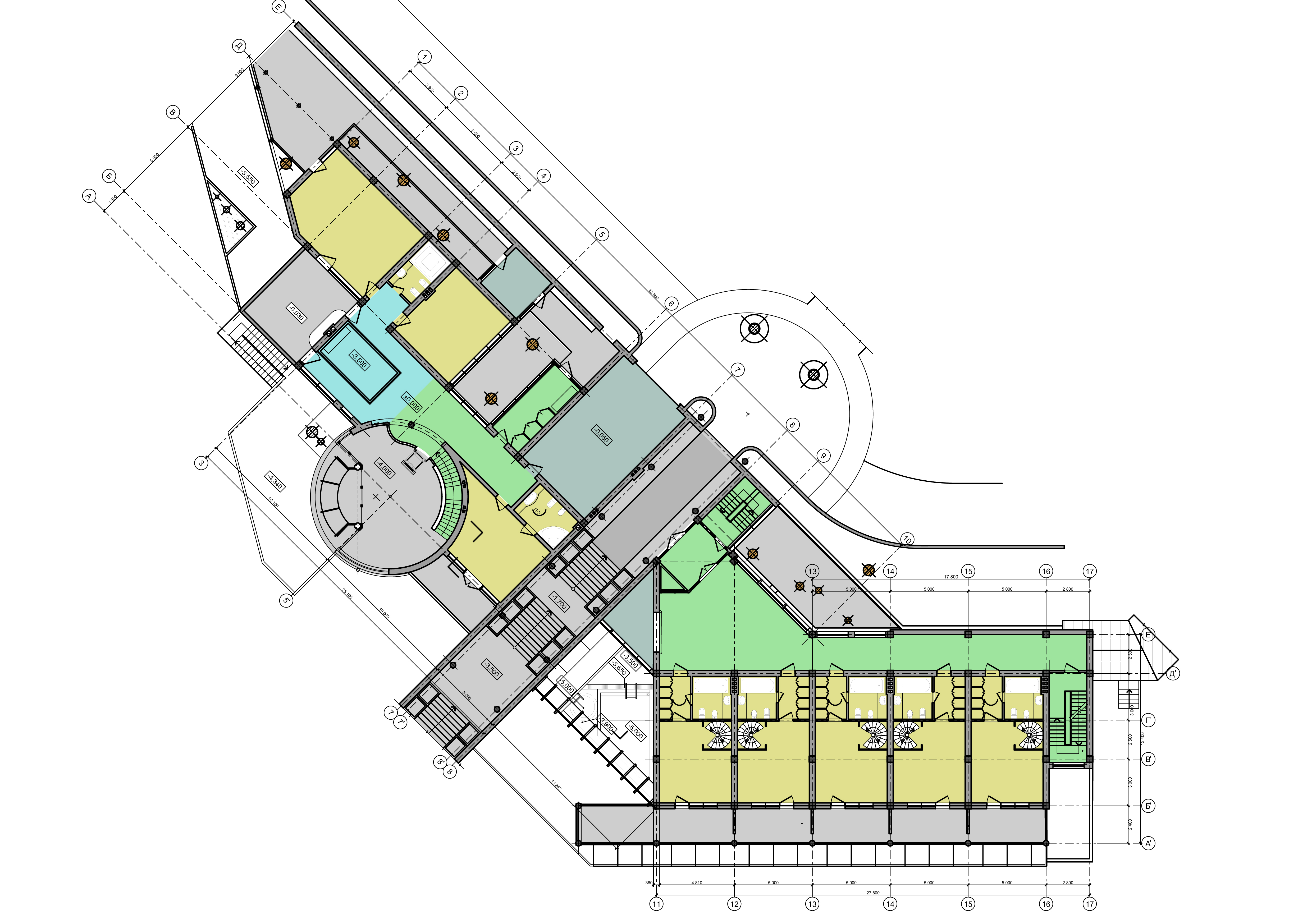
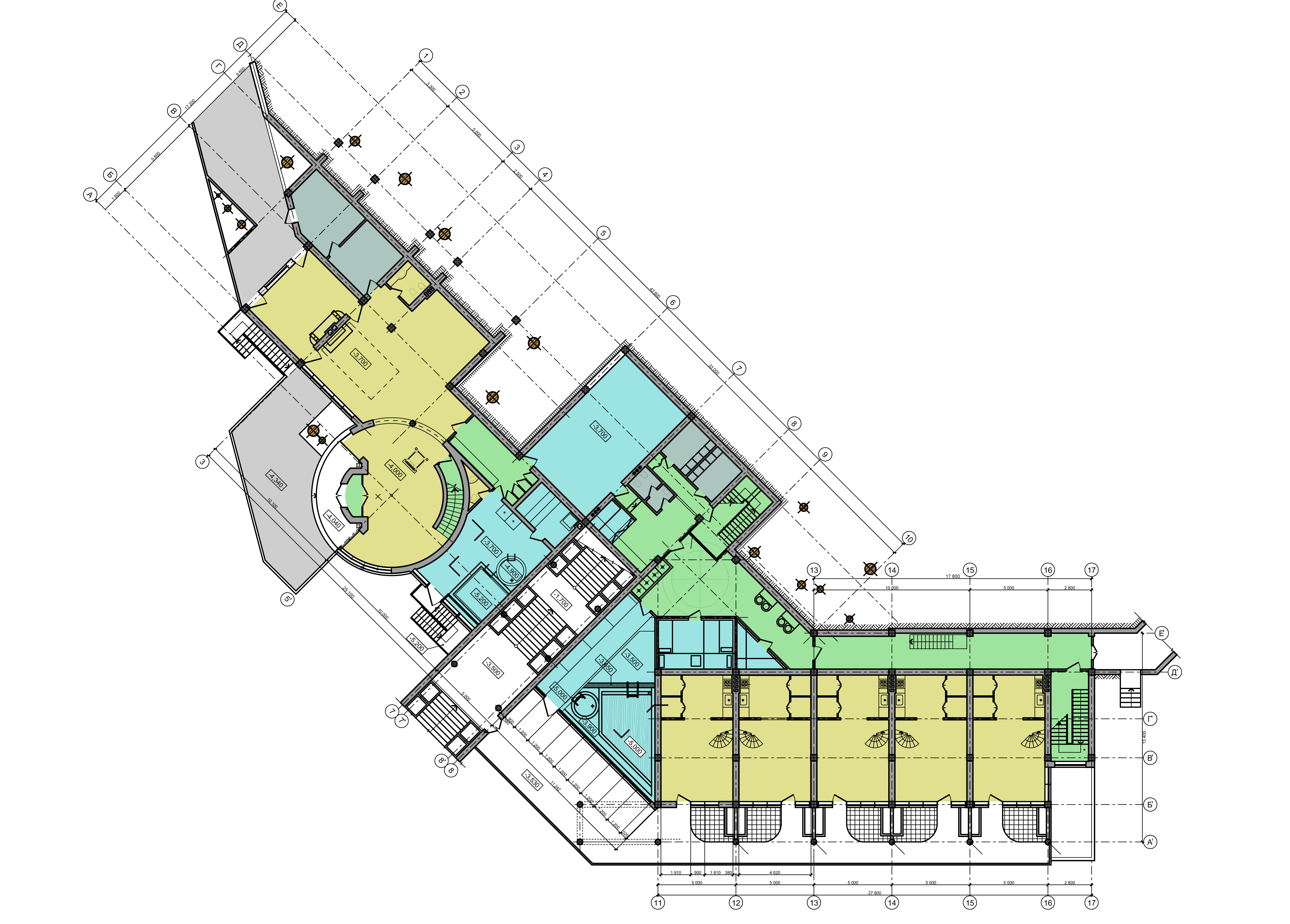
Будинок запроектований за індивідуальним проектом. Змінноі поверховості від 2х до 4-х поверхів з підвалом і технічним горищем на скельному відкосі з ухилом 35-40 град.

Композиційна схема спального корпусу ділить будинок на два функціональних блоки, які відповідають між народній класифікаціі готелів *****

Детальніше про проект

Будинок запроектований за індивідуальним проектом. Змінноі поверховості від 2х до 4-х поверхів з підвалом і технічним горищем на скельному відкосі з ухилом 35-40 град.

Композиційна схема спального корпусу ділить будинок на два функціональних блоки, які відповідають між народній класифікаціі готелів *****

В правій частині корпусу знаходиться готельний номер “апартамент- Президент” на одну сім'ю, в лівій - 5 готельних номерів “Люкс” в двохрівнях кожний.

Ліва і права частини будинку запроектовані як два окремих об'єктиз'єднані між собою критимпереходом, який перпендикулярно головномуфасаду перерізає об’єм спального корпусу.

Цей перехід є композиційною віссю всієі об'ємно-просторовоі композиціі санаторно-оздоровчого центру , а для спального корпусу транзитною віссю всіх рекреаційних потоків відпочиваючих, на протилежний берег ріки до дитячого центру водного дозвілля.”Заплава” Архітектурне вирішення об'єму спального корпусу побудоване на стику двох концептуальних напрямків - з однієі сторони -зберігти традиційний образ шатровоі карпатськоі споруди, який відображає мікрокліматичні.

Особливості регіону і одночасно ввести в стилістику архітектурного образу ускладнені, частково еклектичні форми окремих частин і блоків ансамблю.

Цокольні поверхи і фрагменти перших поверхів двох функцінальних блоків будинку обличковуються місцевим каменем “Карпатський фліш”, який набирається “в лещадку” відповідно тим скельним фрагментам схилів, що оточують спальний корпус.В комбінаціі з каменем виконується кам'яна штукатурка з промивкою слабим розчином соляноі кислоти-в простінках другого ярусу приміщень.

Всі виносні частини будинку,(ті що виходять за масив зовнішніх стін) -крита галерея 1-го і 2-го по верхів блоку “Люксів”,критий перехід до пейзажноі зони “Заплава“, всі підшивки дахових звісів, покриття терас виконуються з деревяних елементів,відповідно оброблених по технологіі “евробрус” Вітражні системи ,заповнення віконних пройм -фірми “ШУКО”,дахове покриття запроектоване в системі “РАЙЦІНК”